KUBENA RESIDENCE

Архитектурный

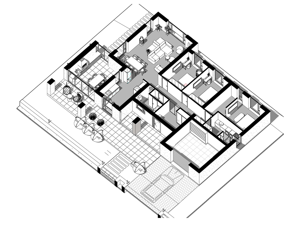
Проект одноэтажного дома из газобетона в живописном месте на краешке леса на берегу реки Кубены.

  • Площадь внутренняя: 190м2
  • Площадь общая: 218м2
  • Локация: Сокольский район Вологодской области
  • Материал стен: газобетон
  • В доме 3 спальни, гардеробная, кладовка, два санузла, гараж для хранения техники, BBQ-веранда со сдвижным остеклением.

ДРУГИЕ НАШИ РАБОТЫ

Проекты

Остались вопросы?

Запишись на бесплатную консультацию с архитектором в нашем офисе.
Нажимая кнопку отправить вы соглашаетесь с политикой конфиденциальности