LESKOVO, 368м2

Архитектурный

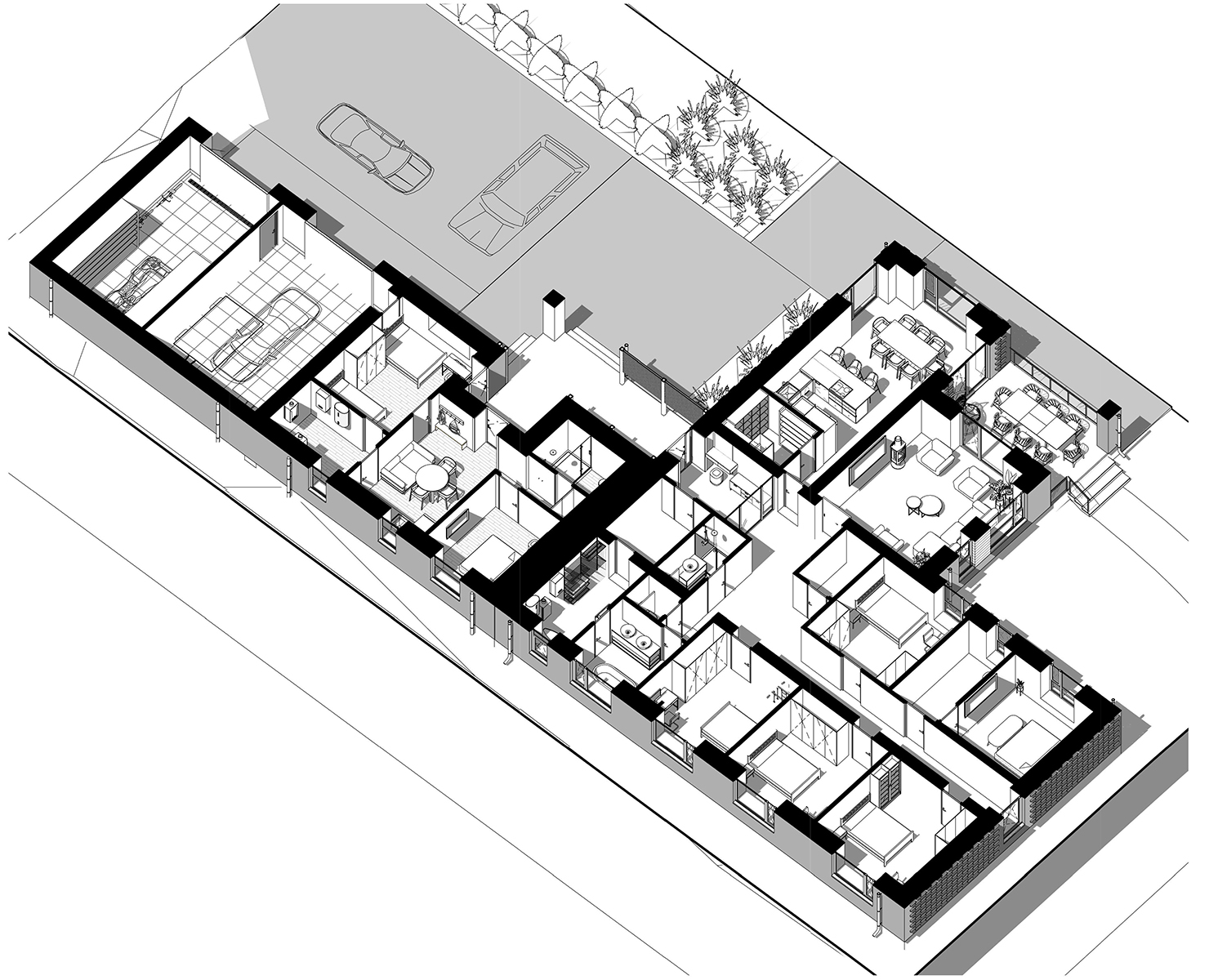
LESKOVO – проект жилого дома для большой семьи, состоящего из двух зданий, примыкающих друг к другу.

Проектом предусмотрено две очереди строительства:
1. Здание одноэтажного гаража с плоской кровлей, с котельной, жилой частью с двумя спальнями, кухней, душевой и большим хозблоком.
2. Основной жилой дом со скатной кровлей и пятью спальнями.

Пока строится основной жилой дом, можно останавливаться в здании гаража. Затем, первый дом останется гостевым, а одна из спален будет кладовкой.

Оба объема объединит общее крыльцо.

Дом расположен на рельефном участке, и основными видами открыт на нижележащие просторы.

  • Площадь основного дома внутренняя: 206м2, площадь гостевого дома с гаражом внутренняя 118.2м2
  • Площадь общая: 368м2
  • Площадь застройки: 480м2
  • Локация: Вологодский район
  • Материал стен: кирпич
  • Особенности: рельефный участок, две очереди строительства, разные фундаменты объемно-пространственных блоков. Кухня и гостиная разъединены – это было особым пожелание заказчиков.

ДРУГИЕ НАШИ РАБОТЫ

Проекты

Остались вопросы?

Запишись на бесплатную консультацию с архитектором в нашем офисе.
Нажимая кнопку отправить вы соглашаетесь с политикой конфиденциальности